アパート
POINT
敷地内駐車場あります♪荷物の多い方に重宝するウォークインクローゼットや人気のカウンターキッチンあります!!お問い合わせはユーミーらいふへ。
賃料:7.3万円万円
敷金/礼金:-/73000円
共益費:4000円
間取り:1LDK
面積(専有・建物):42.11㎡
所在地/神奈川県厚木市緑ケ丘5丁目16-43 交通/小田急線
本厚木駅 6分
お問い合せ先:ユーミーらいふ本厚木北口店
所在地 : 神奈川県厚木市中町2丁目5-4 TALK HOUSE201号室
TEL : 046-259-6631
免許番号 : 神奈川県知事(1)第32294号
物件の詳細データ
※間取りの「S」はサービスルーム(納戸)です。
※QRコードは(株)デンソーウェーブの登録商標です。
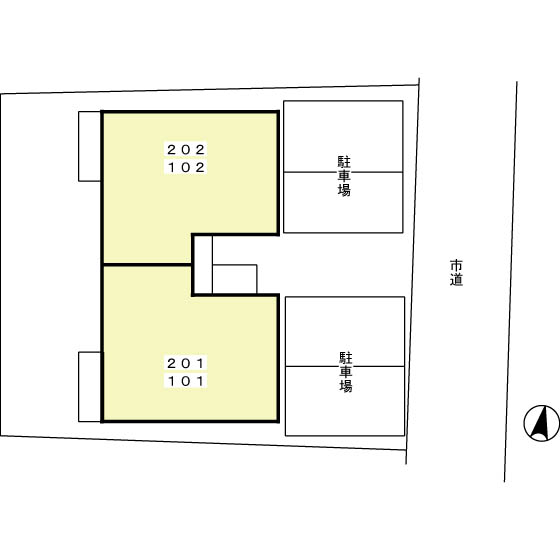
| 物件所在地 | 神奈川県厚木市緑ケ丘5丁目16-43 |
|---|---|
| 交通機関 | 小田急線 本厚木駅 バス8分 黄金原 バス停徒歩6分 小田急線 厚木駅 徒歩49分 小田急線 愛甲石田駅 徒歩61分 |
| 間取り詳細 | 洋室(6畳) LDK(10.5畳) |
| 築年月 | 2007年6月 |
| 建物構造 | 軽量鉄骨 |
| 所在階/階数 | 1/2 |
| 部屋向き | |
| 入居時期 | 期日指定 2026年1月30日 |
| 現況 | 居住中 |
| 入居条件 | ペット(不可),事務所(不可),楽器等の使用(不可),性別(不問),単身(可),二人(可),高齢者(相談),法人(可),飲食店(不可) |
| 保証会社 | 必須 機関保証加入必須。初回保証料35000円、月額保証料賃料等総額の1%+800円/月(その他商品あり) |
| 周辺施設 | スーパー:LOPIA(ロピア) 厚木店 742m スーパー:ザ・ダイソー アツギトレリス店 869m コンビニ:セブンイレブン 厚木飯山黄金原店 774m コンビニ:ローソン 厚木飯山南店 745m ドラッグストア:クリエイト薬局 厚木緑ケ丘店 698m |
| 設備 | 宅配BOX,対面式キッチン,カウンターキッチン,キッチンに窓,バス・トイレ別,ユニットバス,バス有,追い焚き風呂,脱衣所,浴室に窓,シャワー,トイレ有,温水洗浄便座,洗面所独立,洗面所にドア,洗面化粧台,シャワー付洗面台,エアコン,BS,ネット専用回線,ネット使用料不要,インターホン,TVインターホン,給湯,フローリング,シャッター,室内洗濯機置場,洗濯機置場,雨戸,クローゼット,ウォークインクローゼット,シューズボックス,床下収納,ガス(プロパン),下水(公共下水),電気 |
| 部屋外設備 | バルコニー |
| 駐車場 | 駐車場:有(敷地内) 5500円/月~ 駐輪場:有 |
| 損害保険 | 有 |
| 借家権種類 | 普通借家契約 |
| 定期借家契約期間 | |
| 更新料 | 1ヶ月 |
| その他一時金 | クリーニング費用:60,500円 鍵交換費用:16,500円 |
| その他月次費用 | |
| その他費用について | |
| 取引態様 | 仲介先物 |
| 特徴 | カードキー,角住戸,カード決済可(入居時費用) |
| 備考 | こちらの部屋はネット契約可能物件、契約時にご来店不要です。またご入居に合わせて提携引っ越し業者のご紹介、家具・家電のレンタルサービスも充実しています。 |
| IT重説 | 可 |
| 情報更新日 | 2025年12月12日 |
| 次回情報更新予定日 | 2026年1月11日 |
| 不動産会社コード | 2106038 |
| 物件管理コード | 100000009922448 |
