アパート
POINT
環境維持費:1ヶ月550円(税込)、鍵交換費:ご契約時16500円(税込)、退去時清掃費:52800円(税込)、更新手数料:16500円(税込)、保証委託料:必要、個人契約限定
賃料:5.8万円万円
敷金/礼金:-/-
共益費:5000円
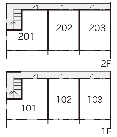
間取り:2DK
面積(専有・建物):39.74㎡
所在地/神奈川県秦野市ひばりケ丘6-17 交通/小田急線
秦野駅 21分
お問い合せ先:ユーミーらいふ新松田店(株)ユーミーネット西湘
所在地 : 神奈川県足柄上郡松田町松田惣領1210
TEL : 0465-46-8311
免許番号 : 神奈川県知事(1)第32293号
物件の詳細データ
※間取りの「S」はサービスルーム(納戸)です。
※QRコードは(株)デンソーウェーブの登録商標です。
| 物件所在地 | 神奈川県秦野市ひばりケ丘6-17 |
|---|---|
| 交通機関 | 小田急線 秦野駅 徒歩21分 小田急線 渋沢駅 徒歩44分 小田急線 東海大学前駅 徒歩81分 |
| 間取り詳細 | |
| 築年月 | 1997年9月 |
| 建物構造 | 木造 |
| 所在階/階数 | 2/2 |
| 部屋向き | |
| 入居時期 | 期日指定 2026年3月下旬 |
| 現況 | 居住中 |
| 入居条件 | |
| 保証会社 | 必須 保証会社の利用:利用料の100%~120% |
| 周辺施設 | コンビニ:セブンイレブン 秦野曽屋東店 386m コンビニ:ローソン はだの台通り店 596m コンビニ:ファミリーマート 秦野市役所前店 676m ドラッグストア:クリエイトSD(エス・ディー) 秦野曽屋店 682m スーパー:ベルク フォルテ秦野店 736m ドラッグストア:クリエイトSD(エス・ディー) フォルテ秦野店 754m |
| 設備 | 電気コンロ,エアコン,家電付,家具付,給湯,室内洗濯機置場 |
| 部屋外設備 | バルコニー |
| 駐車場 | 駐車場:有(敷地内) 7150円/月~ 駐車可能台数(5台以上) |
| 損害保険 | 有 料金:26680円 損保期間:24ヶ月 |
| 借家権種類 | 普通借家契約 |
| 定期借家契約期間 | |
| 更新料 | 16,500円 |
| その他一時金 | 室内清掃費用:52,800円 |
| その他月次費用 | |
| その他費用について | |
| 取引態様 | 仲介先物 |
| 特徴 | 2F以上,フリーレント,カード決済可(入居時費用) |
| 備考 | |
| IT重説 | 可 |
| 情報更新日 | 2026年2月22日 |
| 次回情報更新予定日 | 2026年3月12日 |
| 不動産会社コード | 2106043 |
| 物件管理コード | 1125729087530002376188 |
