アパート
POINT
環境維持費:1ヶ月550円、鍵交換費:ご契約時16500円、退去時清掃費:41800円、インターネット利用料:有料、更新手数料:16500円、保証委託料:必要
賃料:4.7万円万円
敷金/礼金:-/-
共益費:5000円
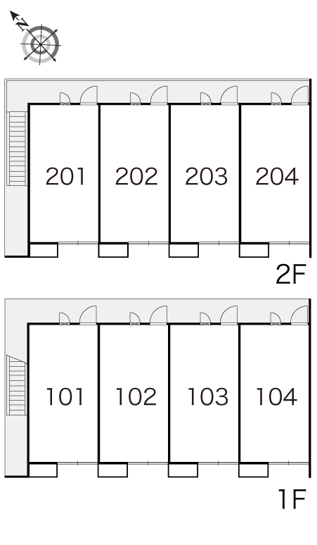
間取り:1K
面積(専有・建物):20.28㎡
所在地/神奈川県秦野市鶴巻北2丁目9-38 交通/小田急線
鶴巻温泉駅 6分
お問い合せ先:ユーミーらいふ平塚本店(株)ユーミーネット西湘
所在地 : 神奈川県平塚市河内370 1F
TEL : 0463-36-3500
免許番号 : 神奈川県知事(1)第32293号
物件の詳細データ
※間取りの「S」はサービスルーム(納戸)です。
※QRコードは(株)デンソーウェーブの登録商標です。
| 物件所在地 | 神奈川県秦野市鶴巻北2丁目9-38 |
|---|---|
| 交通機関 | 小田急線 鶴巻温泉駅 徒歩6分 |
| 間取り詳細 | |
| 築年月 | 2000年6月 |
| 建物構造 | 鉄骨 |
| 所在階/階数 | 1/2 |
| 部屋向き | |
| 入居時期 | 即時 |
| 現況 | 空 |
| 入居条件 | |
| 保証会社 | 必須 保証会社の利用:利用料の100%~120% |
| 周辺施設 | コンビニ:ファミリーマート 秦野鶴巻店 228m スーパー:フードワン 鶴巻店 290m 総合病院:鶴巻温泉病院 297m |
| 設備 | 電気コンロ,バス・トイレ別,エアコン,家電付,家具付,給湯,室内洗濯機置場 |
| 部屋外設備 | |
| 駐車場 | 駐輪場:有 |
| 損害保険 | 有 料金:26680円 損保期間:24ヶ月 |
| 借家権種類 | 普通借家契約 |
| 定期借家契約期間 | |
| 更新料 | 16,500円 |
| その他一時金 | 室内清掃費用:41,800円 |
| その他月次費用 | |
| その他費用について | |
| 取引態様 | 仲介先物 |
| 特徴 | ロフト,フリーレント,カード決済可(入居時費用) |
| 備考 | |
| IT重説 | 可 |
| 情報更新日 | 2025年11月4日 |
| 次回情報更新予定日 | 2025年11月22日 |
| 不動産会社コード | 2004206 |
| 物件管理コード | 1125729087530002401337 |
