戸建
POINT
土地200坪!二世帯向きの大型9LDK貸家!喫煙不可です。キッチン・トイレは2ヶ所完備。庭10坪以上,駐車場2台分。お問い合わせはユーミーらいふまで!!
賃料:17.5万円万円
敷金/礼金:2ヶ月/1ヶ月
共益費:5000円
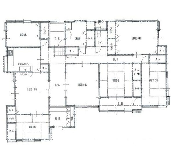
間取り:9LDK
面積(専有・建物):253.08㎡
所在地/神奈川県厚木市下川入555 交通/小田急線
本厚木駅 10分
お問い合せ先:ユーミーらいふ本厚木北口店
所在地 : 神奈川県厚木市中町2丁目5-4 TALK HOUSE201号室
TEL : 046-259-6631
免許番号 : 神奈川県知事(1)第32294号
物件の詳細データ
※間取りの「S」はサービスルーム(納戸)です。
※QRコードは(株)デンソーウェーブの登録商標です。
| 物件所在地 | 神奈川県厚木市下川入555 |
|---|---|
| 交通機関 | 小田急線 本厚木駅 バス25分 中荻原 バス停徒歩10分 相模線 相武台下駅 徒歩64分 相模線 下溝駅 徒歩86分 |
| 間取り詳細 | |
| 築年月 | 1997年10月 |
| 建物構造 | 木造 |
| 所在階/階数 | 1-2/2 |
| 部屋向き | 南西 |
| 入居時期 | 相談 |
| 現況 | 空 |
| 入居条件 | 子供(可),二人(可) |
| 保証会社 | 必須 JID トリオTrust 初回賃料の50% 2年毎賃料の30% 集送金手数料330円税込 |
| 周辺施設 | スーパー:エスパティオ 下川入店 919m ドラッグストア:クリエイトエス・ディー下川入店 952m コンビニ:セブンイレブン 厚木下川入東店 1126m コンビニ:ミニストップ 厚木下川入店 1097m |
| 設備 | システムキッチン,対面式キッチン,L字型キッチン,カウンターキッチン,ガスコンロ設置済,3口以上コンロ,キッチン2ヶ所,バス・トイレ別,バス有,追い焚き風呂,脱衣所,浴室に窓,シャワー,トイレ有,トイレ2ヶ所,温水洗浄便座,洗面台,洗面所独立,洗面所に窓,洗面所にドア,洗面化粧台,シャワー付洗面台,洗濯機置場,クローゼット,クローゼット4ヶ所,シューズボックス,全居室収納,押入,収納有,ガス(プロパン),電気 |
| 部屋外設備 | ベランダ,庭 |
| 駐車場 | 駐車場:付(無料) 駐車可能台数(2台) |
| 損害保険 | 有 損保名称:借家人賠償保険 料金:25000円 損保期間:24ヶ月 |
| 借家権種類 | 普通借家契約 |
| 定期借家契約期間 | |
| 更新料 | 新賃料 1ヶ月 |
| その他一時金 | |
| その他月次費用 | |
| その他費用について | |
| 取引態様 | 仲介先物 |
| 特徴 | 始発駅,閑静な住宅街,上階無し,玄関ホール,2世帯向き,出窓,前面棟無,カード決済可(入居時費用) |
| 備考 | |
| IT重説 | 可 |
| 情報更新日 | 2026年5月13日 |
| 次回情報更新予定日 | 2026年6月12日 |
| 不動産会社コード | 2106038 |
| 物件管理コード | 1125729087530002505138 |
