マンション
POINT
新築 2LDKタイプ/角住戸/3面採光/閑静な住宅街の物件です。オートロック/防犯カメラ/ダブルロック/セキュリティ会社加入済で安心して生活できます。株式会社ユーミーネットまでお問い合わせ下さい。
賃料:12.6万円万円
敷金/礼金:-/2ヶ月
共益費:6000円
間取り:2LDK
面積(専有・建物):61.28㎡
所在地/神奈川県座間市相武台1丁目25-22 交通/小田急線
相武台前駅 7分
物件の詳細データ
※間取りの「S」はサービスルーム(納戸)です。
※QRコードは(株)デンソーウェーブの登録商標です。
| 物件所在地 | 神奈川県座間市相武台1丁目25-22 |
|---|---|
| 交通機関 | 小田急線 相武台前駅 徒歩7分 小田急線 小田急相模原駅 徒歩24分 小田急線 座間駅 徒歩36分 |
| 間取り詳細 | 洋室(6.1畳) 洋室(6.6畳) LDK(14.7畳) |
| 築年月 | 完成予定 2026年1月 |
| 建物構造 | 鉄骨 |
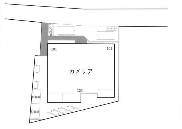
| 所在階/階数 | 1/3 |
| 部屋向き | 南東 |
| 入居時期 | 期日指定 2026年2月上旬 |
| 現況 | 未完成 |
| 入居条件 | ペット(不可),事務所(不可),楽器等の使用(不可),二人(可) |
| 保証会社 | 必須 エポスカード株式会社:初回保証料月額総賃料合計の60%、月次保証料1.5% |
| 周辺施設 | ショッピング施設:小田急OX 560m ショッピング施設:BIG-A 450m その他:クリエイトSD 260m コンビニ:セブンイレブン 350m ショッピング施設:まいばすけっと 220m |
| 設備 | 宅配BOX,システムキッチン,対面式キッチン,カウンターキッチン,ガスコンロ設置済,3口以上コンロ,ガスキッチン,キッチンに窓,キッチン未使用,バス・トイレ別,バス有,追い焚き風呂,浴室乾燥,脱衣所,浴室未使用,シャワー,トイレ有,温水洗浄便座,トイレ未使用,洗面所独立,洗面所にドア,洗面化粧台,シャワー付洗面台,エアコン,CATV,CATVインターネット,ネット使用料不要,インターホン,TVインターホン,24時間換気システム,太陽光発電システム,シャッター,室内洗濯機置場,洗濯機置場,クローゼット,クローゼット2ヶ所,シューズウォークインクローゼット,床下収納,ガス(都市ガス),電気 |
| 部屋外設備 | バルコニー |
| 駐車場 | 駐車場:無 駐輪場:有 バイク置き場:有 |
| 損害保険 | 有 損保名称:家財総合保険 料金:18000円 損保期間:24ヶ月 |
| 借家権種類 | 定期借家契約 |
| 定期借家契約期間 | 契約期間:2年 |
| 更新料 | |
| その他一時金 | 退去時室内クリーニング+排水管洗浄費用:59,400円 |
| その他月次費用 | |
| その他費用について | |
| 取引態様 | 仲介先物 |
| 特徴 | 防犯カメラ,閑静な住宅街,オートロック,ダブルロック,角住戸,2面採光,3面採光,カード決済可(入居時費用) |
| 備考 | 2026年1月完成。こちらの部屋はネット契約可能物件、契約時にご来店不要です。またご入居に合わせて 提携引っ越し業者のご紹介、家具・家電のレンタルサービスも充実しています。 |
| IT重説 | 可 |
| 情報更新日 | 2026年1月19日 |
| 次回情報更新予定日 | 2026年2月6日 |
| 不動産会社コード | 2106034 |
| 物件管理コード | 1125729087530002543843 |
