戸建
POINT
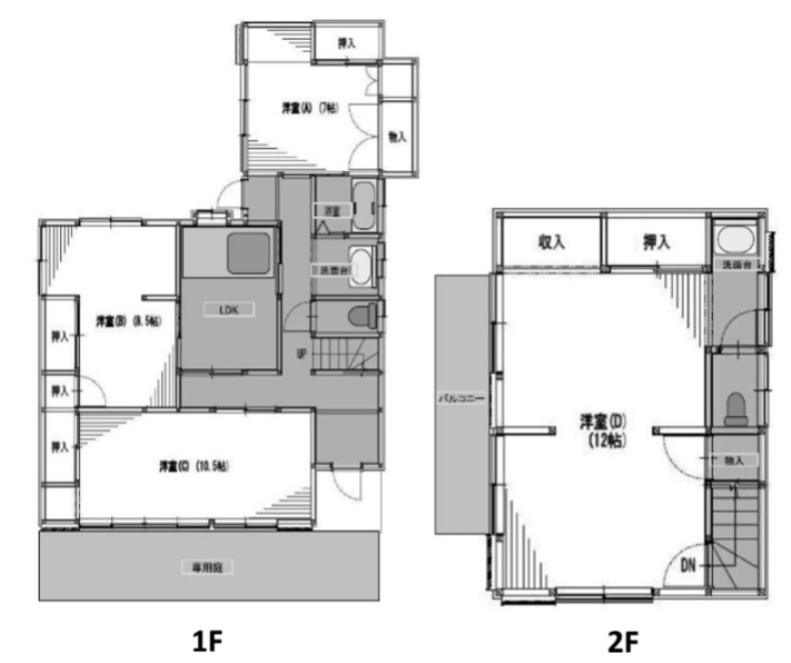
4LDK/111.46㎡/3面採光/専用庭のある物件です。トイレ2ヶ所/2階洗面台/洗面化粧台/独立型キッチン/全居室収納有と設備が揃っています。快適な暮らしは株式会社ユーミーネットにお任せください。
賃料:12.9万円万円
敷金/礼金:1ヶ月/-
共益費:0円
間取り:4LDK
面積(専有・建物):111.46㎡
所在地/神奈川県横浜市磯子区田中2丁目8-2 交通/根岸線
洋光台駅 11分
物件の詳細データ
※間取りの「S」はサービスルーム(納戸)です。
※QRコードは(株)デンソーウェーブの登録商標です。
| 物件所在地 | 神奈川県横浜市磯子区田中2丁目8-2 |
|---|---|
| 交通機関 | 根岸線 洋光台駅 徒歩11分 京急本線 屏風浦駅 徒歩28分 京急本線 杉田(神奈川)駅 徒歩29分 |
| 間取り詳細 | |
| 築年月 | 1962年6月 |
| 建物構造 | その他 |
| 所在階/階数 | /2 |
| 部屋向き | 南東 |
| 入居時期 | 即時 |
| 現況 | 空 |
| 入居条件 | ペット(可),事務所(不可),楽器等の使用(不可),二人(可) |
| 保証会社 | 必須 月額賃料の50%~100% |
| 周辺施設 | スーパー:JA横浜 「ハマッ子」直売所 メルカートいそご店 352m スーパー:まいばすけっと 洋光台1丁目店 393m コンビニ:セブンイレブン 横浜洋光台中央店 464m コンビニ:ローソン 栗木一丁目店 802m ドラッグストア:マツモトキヨシ 洋光台店 843m ホームセンター:Olympic(オリンピック) 洋光台店 957m |
| 設備 | 独立型キッチン,キッチンに窓,バス・トイレ別,バス有,脱衣所,浴室に窓,シャワー,トイレ有,トイレ2ヶ所,洗面所独立,2階洗面台,洗面所に窓,洗面所にドア,洗面化粧台,全居室収納,押入,下水(公共下水),水道(公営),電気 |
| 部屋外設備 | 専用庭,バルコニー |
| 駐車場 | 駐車場:無 |
| 損害保険 | 有 料金:24000円 損保期間:24ヶ月 |
| 借家権種類 | 普通借家契約 |
| 定期借家契約期間 | |
| 更新料 | 新賃料 1ヶ月 |
| その他一時金 | 契約時:24時間サポート/ 2年:19,800円 契約時:鍵交換代:28,600円 |
| その他月次費用 | |
| その他費用について | ※退去時:原状回復費は敷金より精算。不足分実費精算。 ※1年未満の解約は総賃料1ヵ月分の短期解約違約金発生 ※喫煙相談可(敷金1ヵ月増し 退去時償却) |
| 取引態様 | 仲介先物 |
| 特徴 | 閑静な住宅街,2F以上,2面採光,3面採光,出窓,リフォーム:全部屋フローリングへ変更、壁紙張替、クリーニング等(2025年7月),カード決済可(入居時費用) |
| 備考 | こちらの部屋はネット契約可能物件、契約時にご来店不要です。またご入居に合わせて提携引っ越し業者のご紹介、家具・家電のレンタルサービスも充実しています。 |
| IT重説 | |
| 情報更新日 | 2025年11月25日 |
| 次回情報更新予定日 | 2025年12月13日 |
| 不動産会社コード | 2106034 |
| 物件管理コード | 1125729087530002443334 |
